Casa Alberto i Cinta

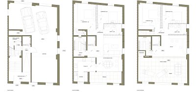
La casa originàriament disposava de planta baixa magatzem, planta primera habitatge i part de terrat transitable a la catalana. Exteriorment, però, el seu aspecte era precari, com si no s'hagués acabat mai l'edifici. El programa demandava l'accessibilitat completa en totes les plantes amb quatre dormitoris i garatge amb zona de jocs en planta baixa. Es conserva l'estructura, els tancaments i les escales. Es disposen dos dormitoris, bany, sala d'estar-menjadors i cuina en planta primera i dos dormitoris, bany i zona d'estudi en planta segona. La distribució de l'habitatge en dues plantes va permetre l'obertura d'una generosa terrassa interior en planta segona amb orientació a sudest.

Rehabilitació i ampliació d’un edifici unifamiliar en testera, la casa d’Alberto i Cinta.

Casa Alberto i Cinta
Particular
2017, 2018, Instal·lació ascensor, Reforma, Rehabitació
Casa Alberto i Cinta
Casa Joan Abril Avinguda Generalitat, 97
Particular
2020, 2021, 2022, Instal·lació ascensor, Rehabitació
Casa Joan Abril Avinguda Generalitat, 97
Habitatge unifamiliar adossat a Pinell de Brai
Particular
2019, 2020, 2021, 2022, Obra nova. Edificació unifamiliar
Habitatge unifamiliar adossat a Pinell de Brai
Xalet Els Pilans
Particular
2018, Obra nova. Edificació unifamiliar
Xalet Els Pilans
Habitatge aïllat a la urbanització serramar d’Alcanar
Particular
2019, 2020, 2021, 2022, Obra nova. Edificació unifamiliar
Habitatge aïllat a la urbanització serramar d’Alcanar
Reforma de façana Carrer Sant Roc, 16 Tortosa
Particular
2018, Reforma
Reforma de façana Carrer Sant Roc, 16 Tortosa
Reforma de les cobertes del Parador de Tortosa
Particular
2018, Reforma
Reforma de les cobertes del Parador de Tortosa
Rehabilitació Carrer Palau, 2 Tortosa
Particular
2018, 2019, 2020, 2021, 2022, Rehabitació
Rehabilitació Carrer Palau, 2 Tortosa
Rehabilitació carrer Benasquer, 4 Tortosa
Particular
2017, Instal·lació ascensor, Rehabitació
Rehabilitació carrer Benasquer, 4 Tortosa
Rehabilitació del mas d’Audí
Particular
2017, Rehabitació
Rehabilitació del mas d’Audí
Casa La Segura
Particular
2003
Casa La Segura
Rehabilitació Torre de Galindo (BCIN)
Particular
2005, 2007
Rehabilitació Torre de Galindo (BCIN)
Pla especial Càmping Port Massaluca
2009, 2014, Urbanisme
Pla especial Càmping Port Massaluca
Casa Ester i Manel
Particular
2009, 2010
Casa Ester i Manel
Habitatge unifamiliar aïllat Cinta i Sergi
Particular
2016, 2017, 2018
Habitatge unifamiliar aïllat Cinta i Sergi
Edifici d’habitatges Carrer La Sang Tortosa
Consol Galiana Ferré
2004, 2005, 2006, 2007, Instal·lació ascensor, Reforma, Rehabitació
Edifici d’habitatges Carrer La Sang Tortosa
Casa Núria+Carlos
Particular
2014, Obra nova. Edificació unifamiliar
Casa Núria+Carlos
Hotel rural La Torre del Prior (BCIN)
2009, 2010, 2011, Rehabitació, Urbanisme
Hotel rural La Torre del Prior (BCIN)
Banys Àrabs Vells de Tortosa, Restaurant L’Assoc
L'Assoc, CB
2008, 2009, 2013, 2014, Reforma, Rehabitació
Banys Àrabs Vells de Tortosa, Restaurant L’Assoc
Mas Les Vinyasses l’Ametlla de Mar
Sideways SL
2006, 2007, Reforma, Rehabitació
Mas Les Vinyasses l’Ametlla de Mar
Casa Nando i Cinta
Particular
2010, Obra nova. Edificació unifamiliar, Reforma
Casa Nando i Cinta
Projecte de rehabilitació de la Casa Grego (BCIL)
Habitat Grego, SL
2007, 2008, Rehabitació
Projecte de rehabilitació de la Casa Grego (BCIL)
Biblioteca Pública de Deltebre
Ajuntament de Deltebre
2011, Obra pública
Biblioteca Pública de Deltebre
Reforma interior Col·legi d’Advocats de Tortosa
Habitat Tortosa, SL
2012, Rehabitació
Reforma interior Col·legi d’Advocats de Tortosa
Guillem Blanch Patxan
2010, Rehabitació
Hotel Monument Ceremines de Xerta (BCIL)
Casa-despatx Rollan Angelet
Rollan Arquitectura SLP
2007, 2008, 2009, Obra nova. Edificació unifamiliar, Rehabitació
Casa-despatx Rollan Angelet
Edifici Carrer del Carme 4 de Tortosa
Anton Llapart, SL
2007, Instal·lació ascensor, Rehabitació
Edifici Carrer del Carme 4 de Tortosa
Casa Víctor i Cinta
2003, Obra nova. Edificació unifamiliar
Casa Víctor i Cinta
Torre de Campredó (BCIN)
Departament de Cultura. Generalitat de Catalunya
2006, Obra pública, Rehabitació
Torre de Campredó (BCIN)
Rehabilitació d’un mas aïllat a Roquetes
2012, 2013
Rehabilitació d’un mas aïllat a Roquetes
Català CA English EN Español ES